

›Villa Palma Cinque
Villa Palma Cinque is a uniquely shaped detached villa. The building has three floors, and each floor consists of a modern, bright apartment that meets all needs. The exterior of the building is clean, harmonious, and the surroundings are tidy and landscaped. The buildings of Villa Palma are airy and located on a uniquely shaped area of 3,600 m2, and can be accessed via a separate road.

›Modern and generous
The Villa Palma Cinque building offers generous, modern, energy-efficient homes that will satisfy all needs. The spacious 4-room apartments include those with gardens or spacious terraces.
An ideal choice for families, those looking for a lifestyle close to nature and investors alike.

›Mediterranean comfort
We are creating a livable, green residential area where the owners will enjoy spending time in summer and winter. In the residential park, we combine the magical Mediterranean values with the comfort and energy efficiency of modern times. The Villa Palma Cinque building has 3 floors, the apartments are the same on each floor, their floor area is 114.6 m2, the terrace belonging to the apartments is 11 m2.

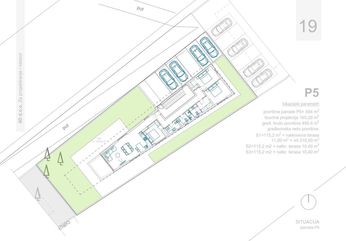
›Building site
Plot size: 600 m2
Number of parking spaces: 6
Garden size: 318 m2
Building area: 165,2 m2

›Floor plan level 0›1›2
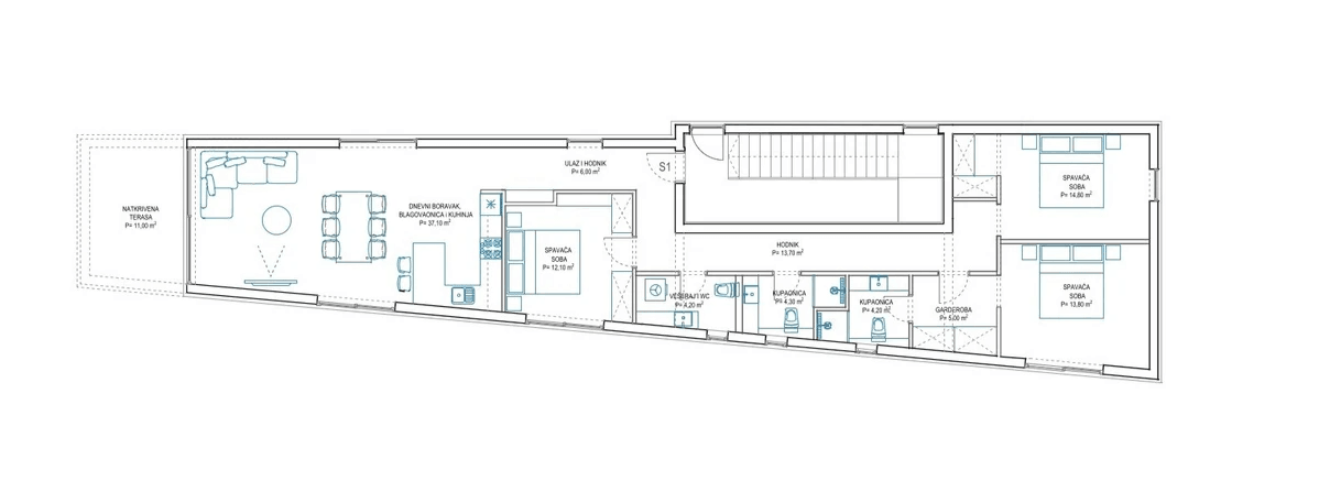
There is one apartment on each floor of the building.
The floor area of the apartments is 100.32 m2
Living room + kitchen + dining room: 33.88 m2, hallway: 13.44 m2
Terrace accessible from the living room: 11 m2
Master bedroom with wardrobe: 17.31 m2 + bathroom-toilet 5.06 m2
2 bedrooms: 11.52 m2 each
Bathroom-toilet: 4.14 m2, Wc: 3.45 m2
Prices:
Ground floor: 416.415 €
100,32 m2 apartment with 11,00 m2 terrace, 318 m2 garden and 2 parking spaces
First floor: 415.380 €
100,32 m2 apartment with 11,00 m2 terrace and 2 parking spaces
Second floor: 415.380 €
100,32 m2 apartment with 11,00 m2 terrace and 2 parking spaces
›Would you like to know more?

About
Project
Features
Resources
Tutorials
Brand Assets
Contact
+36309569574 | +36707019330
villapalmazara@
www.villapalmazara.com
2026 All right reserved | VILLA PALMA ZARA (KOZINO) | Modern splendid villas near the sea | www.villapalmazara.com
Atrium Invest D.o.o. | Put sv. Bartula 139, 23000, Kožino, Hrvatska








