

›Villa Palma Sei
Villa Palma Sei is a three-storey villa building consisting of four modern, bright apartments that meet all needs. The exterior of the buildings is clean, harmonious, and their surroundings are tidy and landscaped. Our buildings are located on a 3600 m2, uniquely shaped, airy area and can be approached via their own, separate road.

›Modern homes
Villa Palma residential complex offers modern, energy-efficient homes that meet all needs. The 3 and 4 bedroom apartments include those with gardens or spacious terraces. It is an ideal choice for families, those looking for a lifestyle close to nature and investors alike.

›Mediterranean comfort
We are creating a livable, green residential area where the owners will enjoy spending time in summer and winter. In the residential park, we combine the magical Mediterranean values with the comfort and energy efficiency of modern times.
The building ais 3-storey, the smaller apartments have a floor area of 68,4 m2, the larger ones are 101-109 square meters.

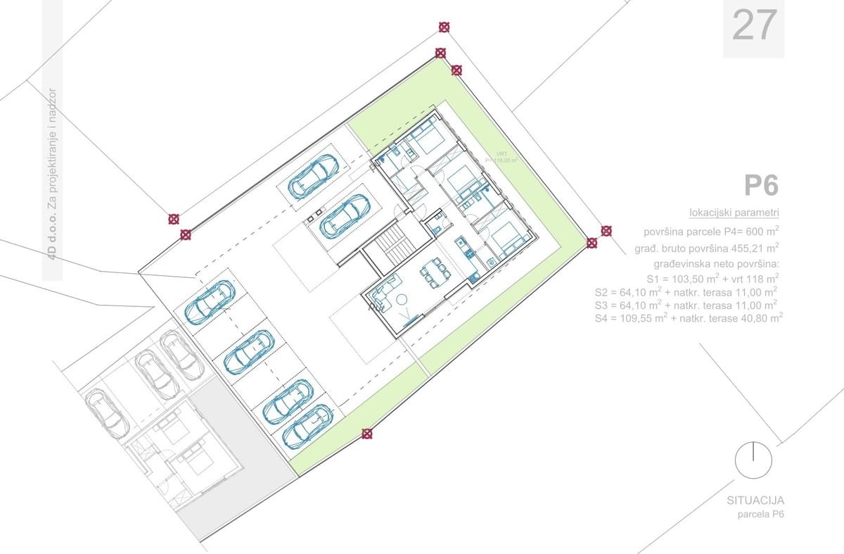
›Construction site
Plot size: 600 m2
Number of parking spaces: 8
Garden size: 118 m2
Building area: 103,5 m2

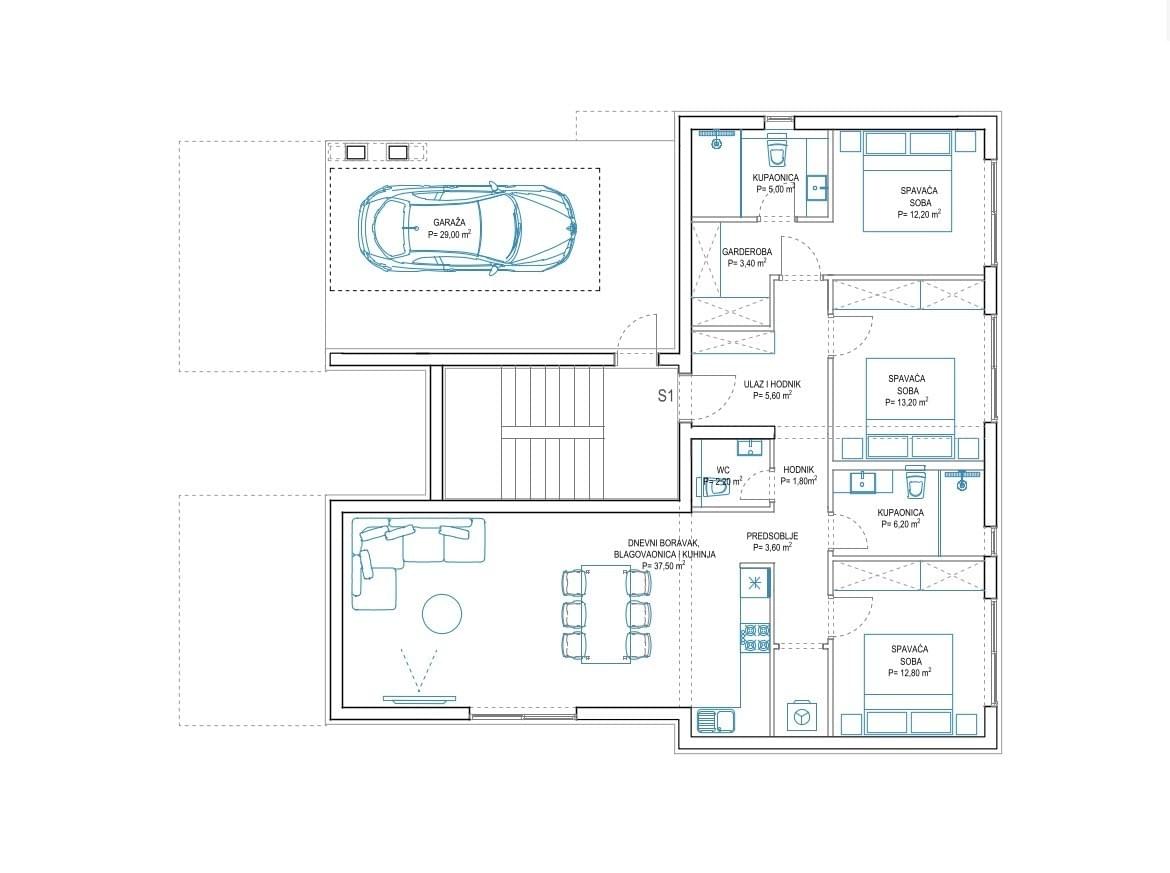
›Ground floor
There is an apartment on the ground floor.
The floor area of the ground floor apartment is 101.30 m2
Living room + kitchen + dining room: 37,5 m2, hallway: 5,8 m2; Master bedroom with wardrobe: 15,5 m2 + bathroom-toilet 5.00 m2; 2 bedrooms: 13,2 m2 and 12,8m2; Bathroom-toilet: 6,2 m2, Wc: 2,2 m2
Price: 363.925 €
100,30 m2 apartment with 118 m2 garden and 1 covered parking space + 1 parking space

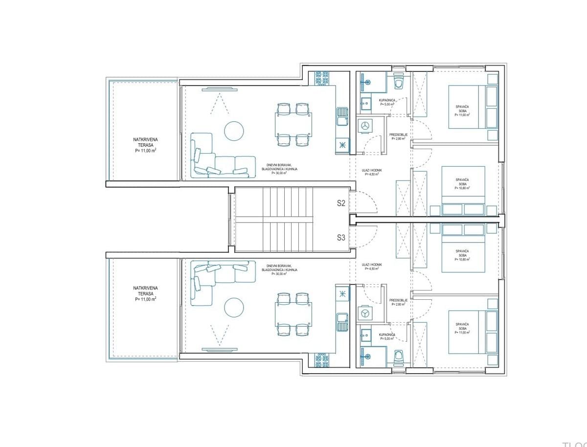
›First floor
On the first floor there are two identical apartments, each with a floor area of 68,4 m2
Living room + kitchen + dining room: 30 m2,
hallway: 4,6 m2; 2 bedrooms: each 11 m2;
Bathroom-toilet: 5 m2
Terrace: 11 m2 per apartment
Price: 253.368 €/apartement
68,40 m2 apartment with 11,00 m2 terrace and 2 parking spaces

›Penthouse
On the second floor there is an apartment with two large terrace.
The apartment has a floor area of 109,55 m2
Living room + kitchen + dining room: 44 m2, hallway: 11,7m2; Terrace accessible from the living room: 30 m2; Terrace accessible from the living room: 10,8 m2
Master bedroom: 14,9 m2 + bathroom-toilet 3,85 m2;
2 bedrooms: 13 m2 and 13,7 m2;
Bathroom-toilet: 4.6 m2, Wc: 2 m2
Price: 493.695 €
109,55 m2 apartment with 30,00+11,00 m2 terrace and 2 parking spaces
›Would you like to know more?

About
Project
Features
Resources
Tutorials
Brand Assets
Contact
+36309569574 | +36707019330
villapalmazara@
www.villapalmazara.com
2026 All right reserved | VILLA PALMA ZARA (KOZINO) | Modern splendid villas near the sea | www.villapalmazara.com
Atrium Invest D.o.o. | Put sv. Bartula 139, 23000, Kožino, Hrvatska










